0
Skip to Content
tone design studio
tone design studio
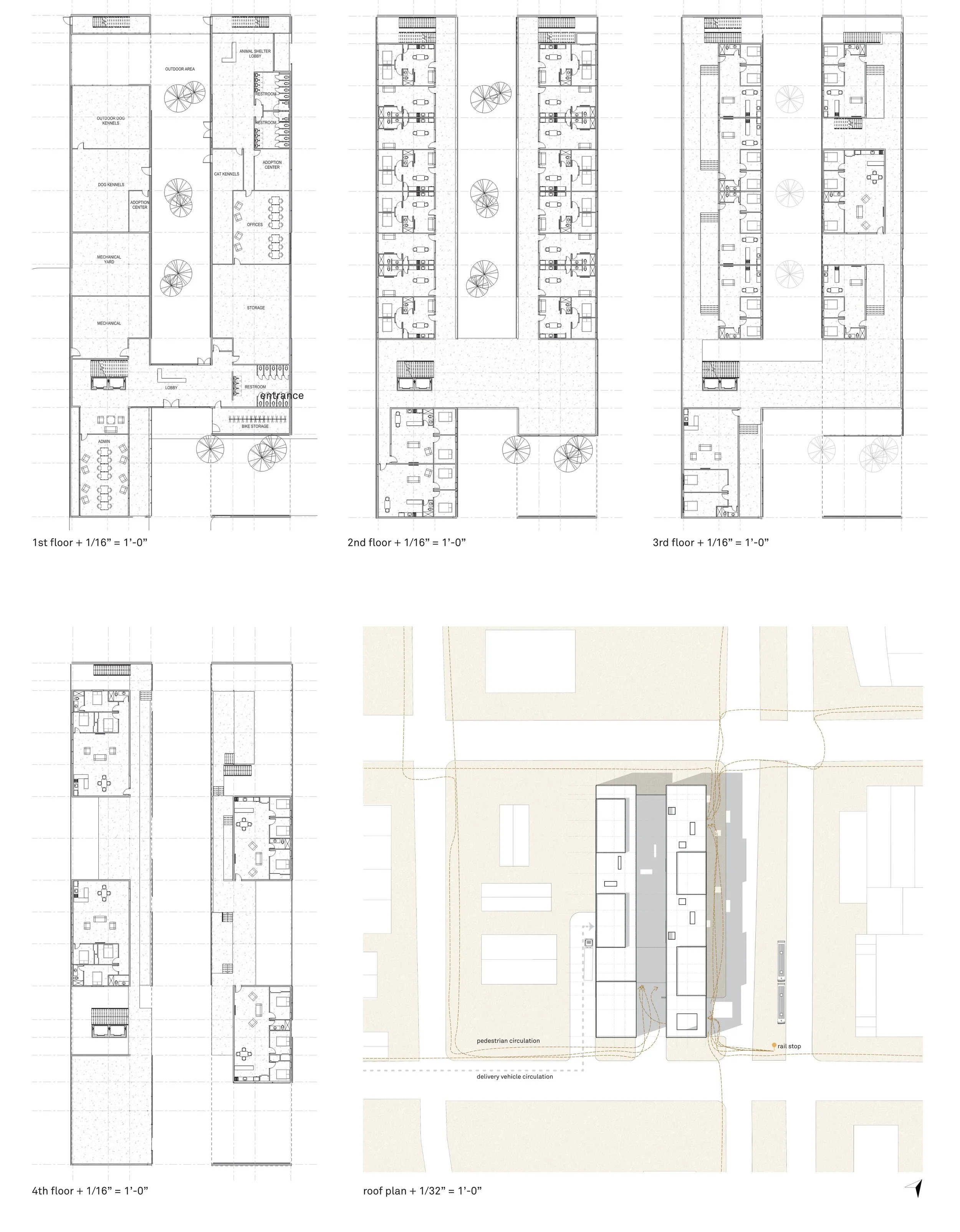
This is a studio project on the 3416 Harrisburg Blvd site to design low-income housing with a retail mixed-use component.

This is a studio project on the 3416 Harrisburg Blvd site to design low-income housing with a retail mixed-use component.

The parti takes a simple rectangular unit and cuts away some volume to provide a garden patio space to each unit along with clerestory windows to the units below.

The parti takes a simple rectangular unit and cuts away some volume to provide a garden patio space to each unit along with clerestory windows to the units below.

The building provides efficiency units to serve single adults as well as multi-bedroom units for families.

The building provides efficiency units to serve single adults as well as multi-bedroom units for families.

floor plams.jpg
section.png
persp1.png
persp.png
section persp.png
section persp1.png

Undergrad Portfolio

Resume

antonette@tonedesignstudio.com